Aller au contenu
AMO Villa
Maître d'oeuvre accompagné
de ses artisans partenaires
Accueil
Qui sommes-nous ?
Services, tarifs & prestations
Réalisations
Assurances
RE 2020
Accueil
Qui sommes-nous ?
Services, tarifs & prestations
Réalisations
Assurances
RE 2020
Contact
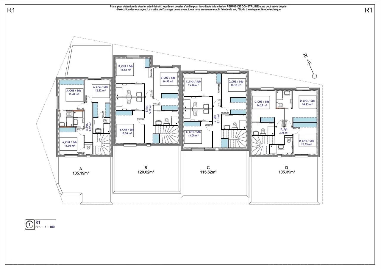
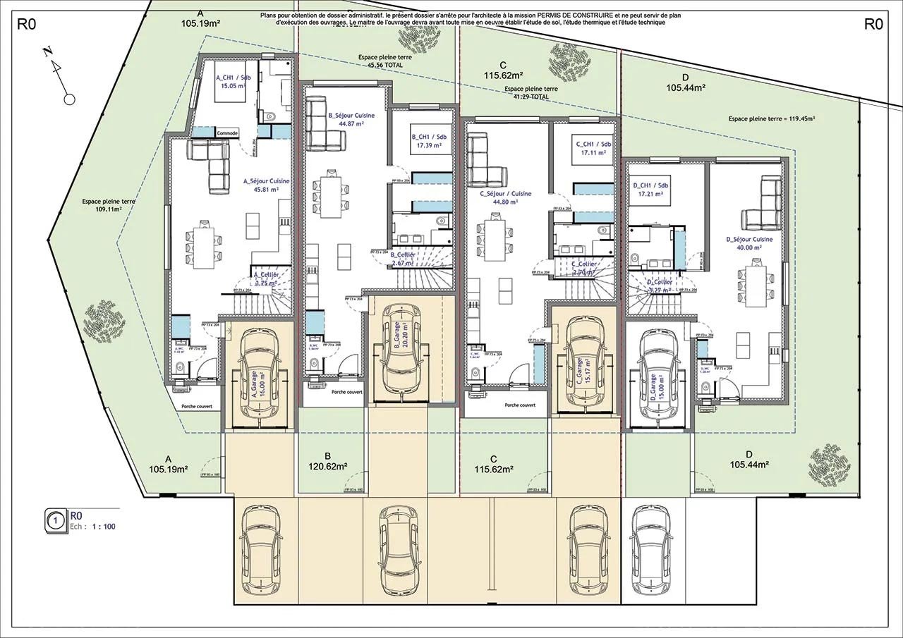
4 villas pour investisseur